Contact Us: 705-927-2774 | Email


LOADING

5 - 655 The Queensway Peterborough (Otonabee Ward 1), Ontario K9J 7M1

2011 sqft
Partially Air Conditioned Forced Air

$535,000

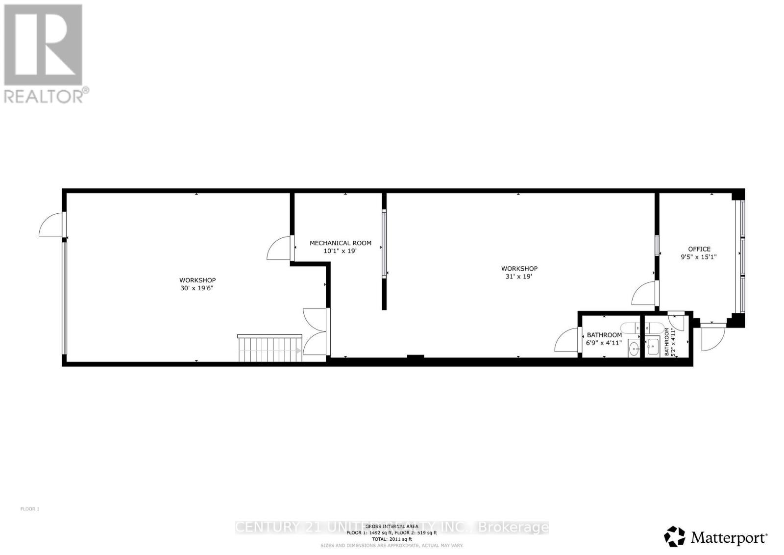
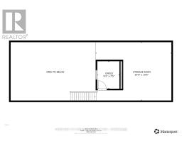
Peterborough Industrial/Commercial condo unit being sold with equipment and operating precision machine shop business. Approx 1600SF with an additional 500SF mezzanine for added office space and/or storage. 14'7 clear height with 10'x10' truck level loading dock. Unit must be sold with equipment. Many permitted uses under M3.5 zoning. DO NOT GO DIRECT. Please book appt. (id:61423)

Property Details

MLS® Number X12536436
Property Type Industrial
Community Name Otonabee Ward 1
Farm Type Other

Building

Cooling Type Partially Air Conditioned
Heating Fuel Natural Gas
Heating Type Forced Air
Size Interior 2011 Sqft
Utility Water Municipal Water

Land

Acreage No
Zoning Description M3.5-281

https://www.realtor.ca/real-estate/29094244/5-655-the-queensway-peterborough-otonabee-ward-1-otonabee-ward-1

Interested?

Contact us for more information


Generating Captcha

Your Favourites

 

No Favourites Found