Contact Us: 705-927-2774 | Email


LOADING

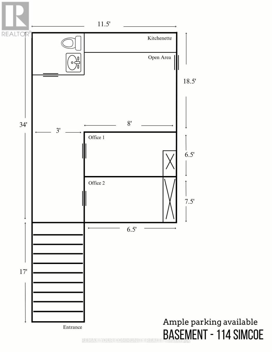
Lower - 114 Simcoe Street Peterborough (Town Ward 3), Ontario K9H 2H4

391 sqft
Fully Air Conditioned Forced Air

$569 Monthly

Prime retail space located in the heart of downtown Peterborough. Almost 400 Sqft available. Parking available. Directly across from Peterborough Square mall, Galaxy cinema, and Millennium waterfront Park. Do not miss out on this fantastic opportunity to be located in a central location, with high vibrancy and conveniently very walkable! (id:61423)

Business

Business Type Other
Business Sub Type Professional office(s)

Property Details

MLS® Number X12803834
Property Type Office
Community Name Town Ward 3

Building

Cooling Type Fully Air Conditioned
Heating Fuel Natural Gas
Heating Type Forced Air
Size Interior 391 Sqft
Type Offices
Utility Water Municipal Water

Land

Acreage No
Size Depth 67 Ft ,9 In
Size Frontage 79 Ft ,6 In
Size Irregular 79.53 X 67.82 Ft
Size Total Text 79.53 X 67.82 Ft
Zoning Description C6

https://www.realtor.ca/real-estate/29379869/lower-114-simcoe-street-peterborough-town-ward-3-town-ward-3

Interested?

Contact us for more information


Generating Captcha

Your Favourites

 

No Favourites Found