Contact Us: 705-927-2774 | Email


LOADING

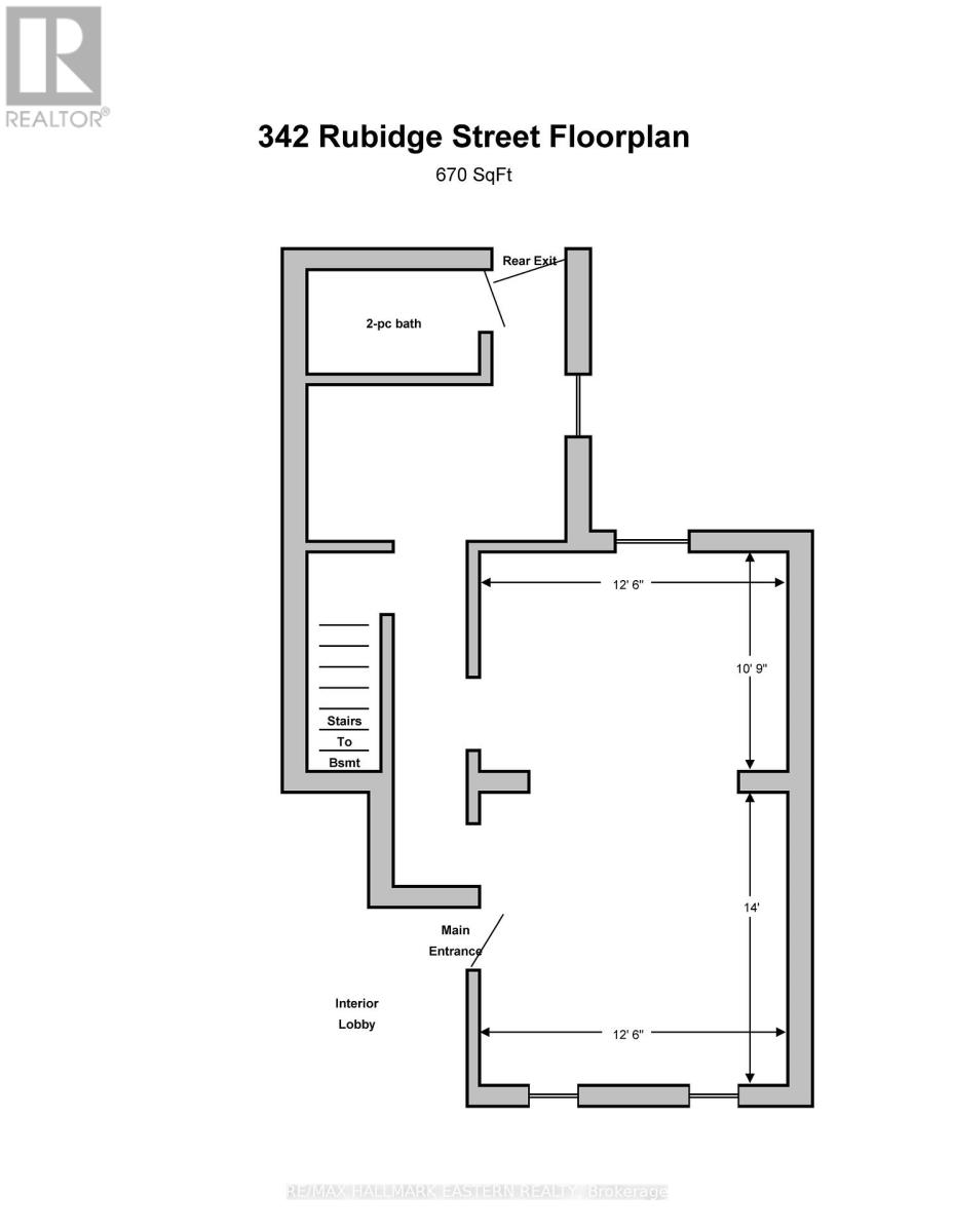
1 - 342 Rubidge Street Peterborough (Town Ward 3), Ontario K9H 4C7

680 sqft
Partially Air Conditioned Forced Air

$1,695 Monthly

Bright, beautiful commercial space for lease in historic Cox Terrace, a National Historic Site. Highly recognized location on busy section of Rubidge Street with high visibility. Perfect for professional office or commercial use. Front and rear entrances, private paved parking, high ceilings, beautiful historic features preserved. Full unfinished basement for storage. Rental rate $1,695 + utilities and HST. Must be seen. (id:61423)

Property Details

MLS® Number X12827078
Property Type Retail
Community Name Town Ward 3
Amenities Near By Public Transit
Parking Space Total 1

Building

Cooling Type Partially Air Conditioned
Heating Fuel Natural Gas
Heating Type Forced Air
Size Interior 680 Sqft
Utility Water Municipal Water

Land

Acreage No
Land Amenities Public Transit
Size Depth 116 Ft ,8 In
Size Frontage 164 Ft ,2 In
Size Irregular 164.22 X 116.73 Ft
Size Total Text 164.22 X 116.73 Ft
Zoning Description Sp236

https://www.realtor.ca/real-estate/29407113/1-342-rubidge-street-peterborough-town-ward-3-town-ward-3

Interested?

Contact us for more information


Generating Captcha

Your Favourites

 

No Favourites Found