Contact Us: 705-927-2774 | Email


LOADING

106 - 189 Kent Street W Kawartha Lakes (Lindsay), Ontario K9V 5G6

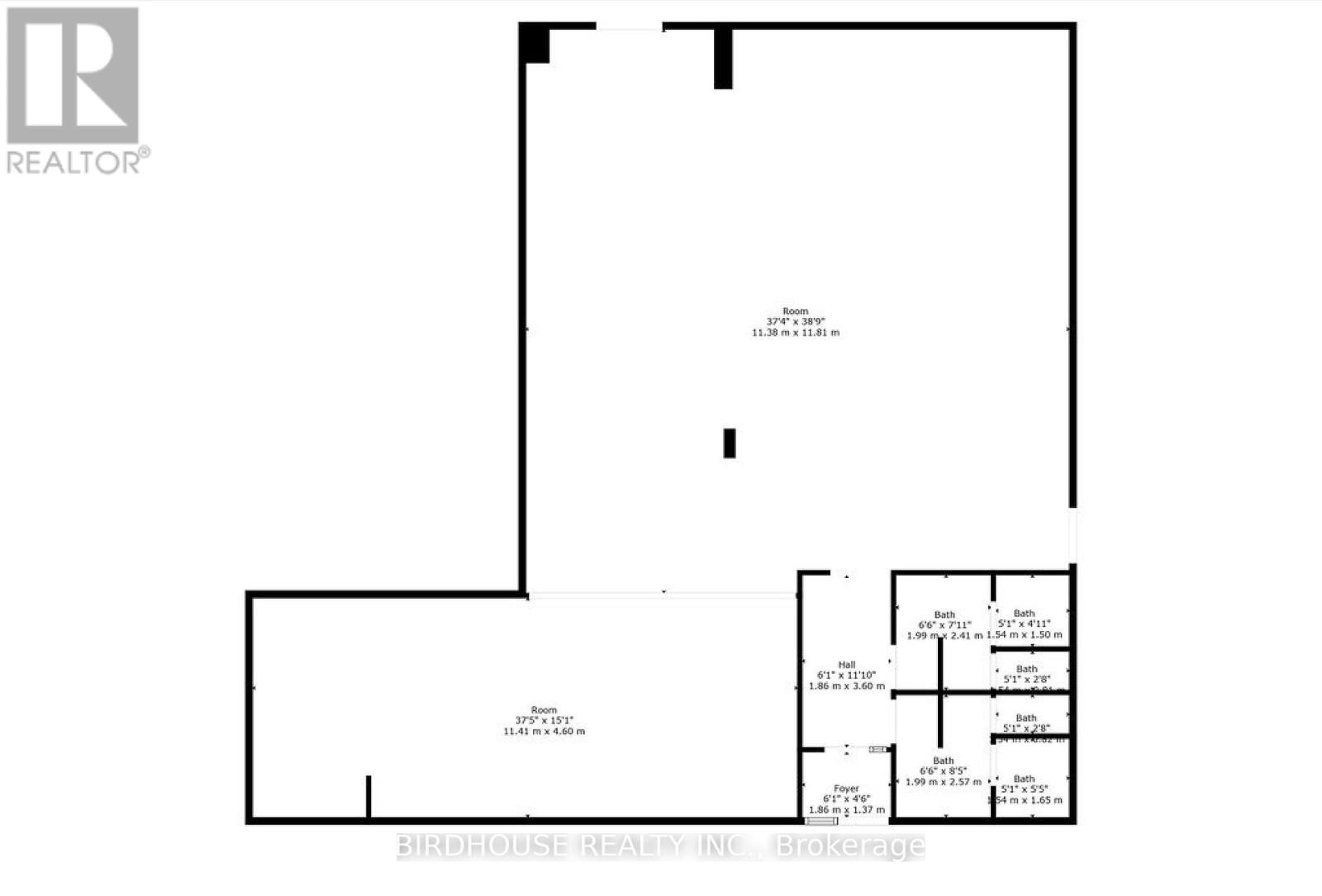
2300 sqft
Fully Air Conditioned Baseboard Heaters

$18 / ft2

Unit 106 Kent Place - Main Floor Leasing Opportunity Of 2300 Sq Ft! Main Entrance From Outside Of Building & Two In Suite Washroom. Located Adjacent To The Passenger Elevator. Kent Place Is A Newly Renovated Premier Downtown Lindsay Commercial Building With An Excellent Mix Of Professional Offices & Services. Fantastic Tenant Mix With Businesses Such As RBC Bank, Pharmacy, An Insurance Agency, Many Law Offices & Medical Offices. Lovely Open Atrium With Skylights With Passenger Elevator. Plenty Of Available Shared Parking On Site Plus Municipal Parking Nearby. Flexible Lease Terms Are Available! **EXTRAS** Additional Rent: $16.30 PSF. (id:61423)

Business

Business Type Other
Business Sub Type Professional office(s)

Property Details

MLS® Number X12292173
Property Type Office
Community Name Lindsay
Amenities Near By Public Transit
Features Elevator

Building

Age 51 To 99 Years
Cooling Type Fully Air Conditioned
Heating Type Baseboard Heaters
Size Interior 2300 Sqft
Type Offices
Utility Water Municipal Water

Land

Acreage No
Land Amenities Public Transit
Size Depth 171 Ft
Size Frontage 174 Ft
Size Irregular 174 X 171 Ft
Size Total Text 174 X 171 Ft
Zoning Description Central Commercial

https://www.realtor.ca/real-estate/28620789/106-189-kent-street-w-kawartha-lakes-lindsay-lindsay

Interested?

Contact us for more information


Generating Captcha

Your Favourites

 

No Favourites Found