4 Bedroom
2 Bathroom
1100 - 1500 sqft
Fireplace
Above Ground Pool
Central Air Conditioning
Forced Air
Waterfront On Creek
Acreage
$849,000
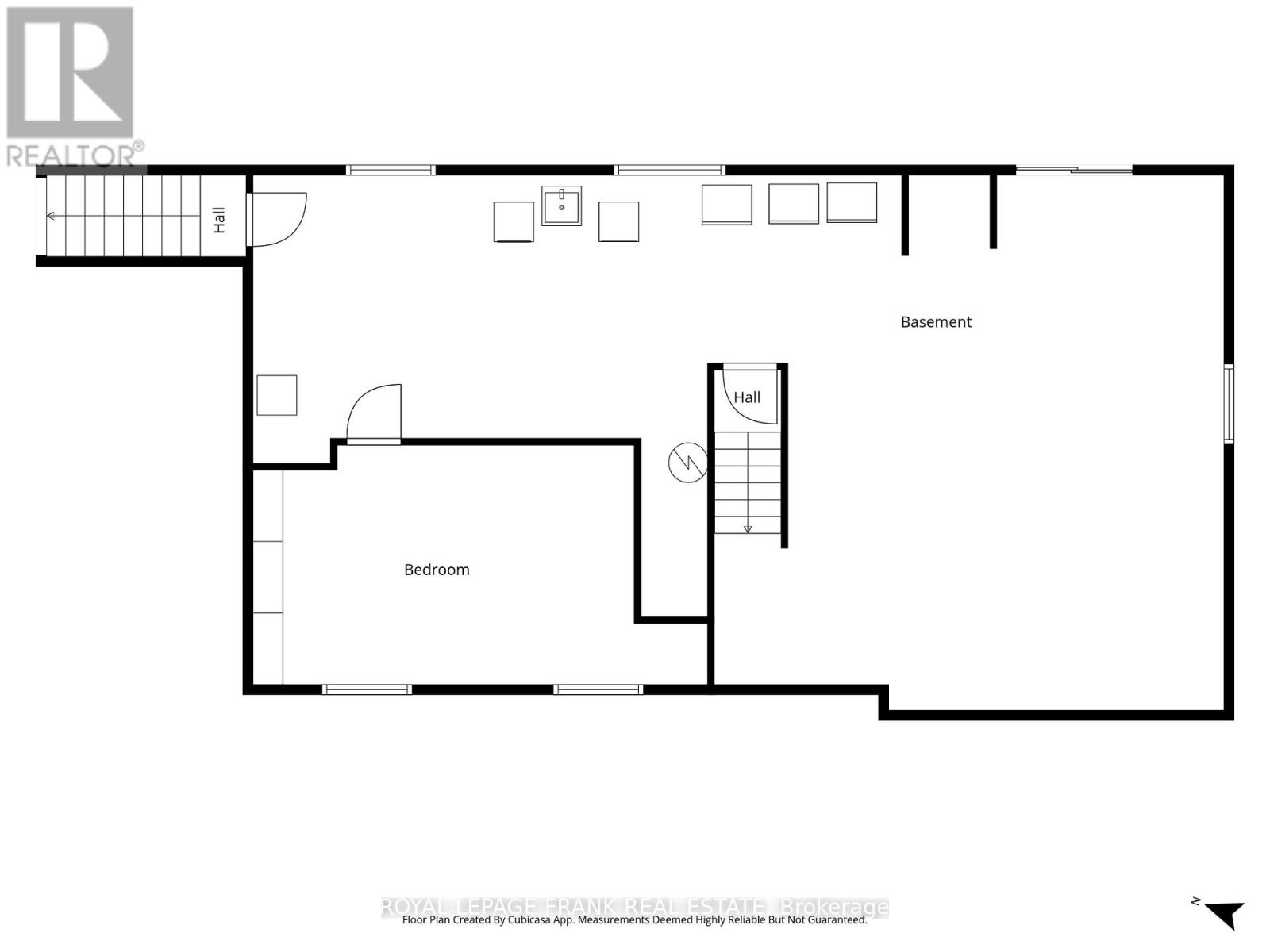
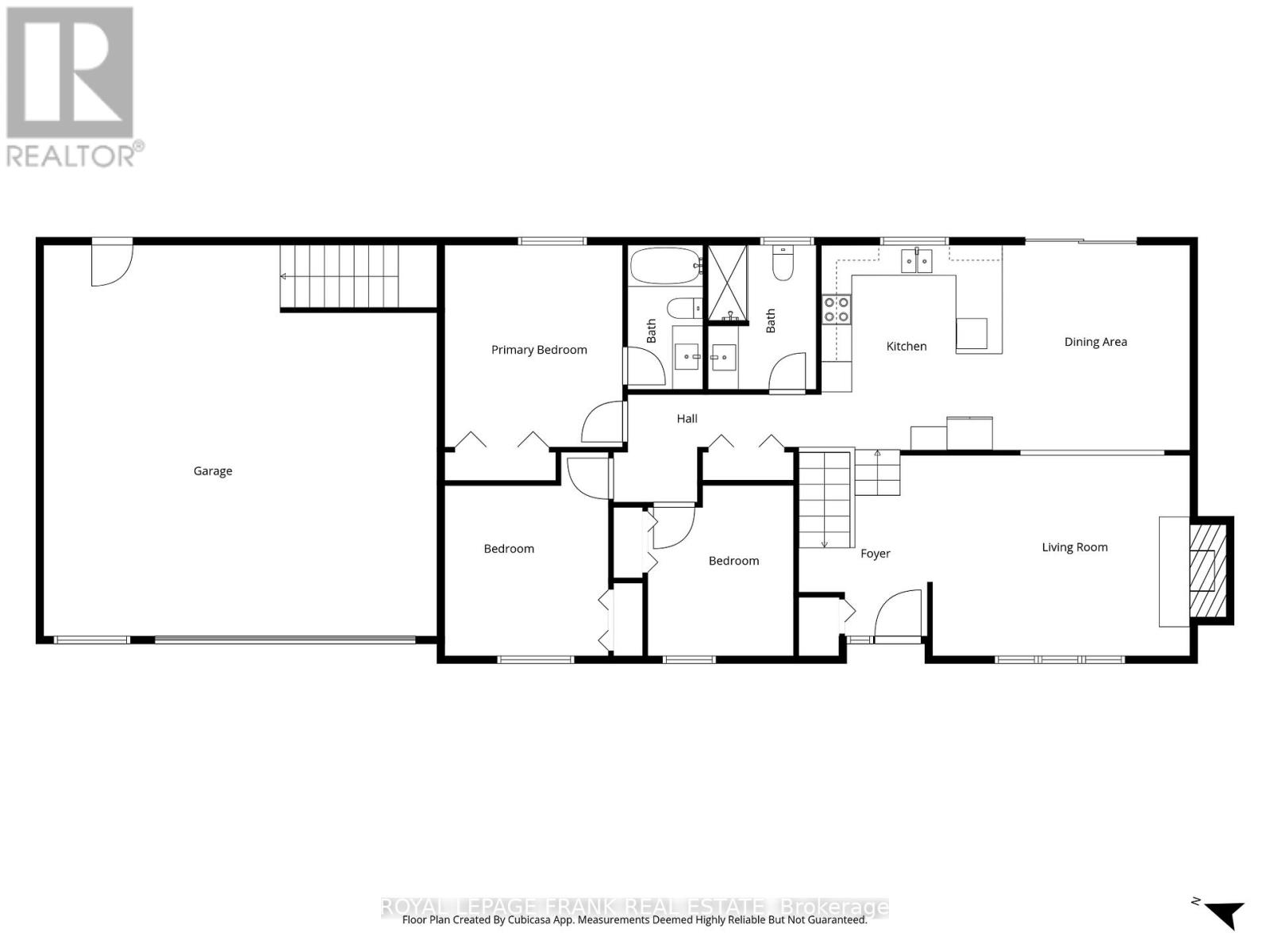
This split level BUNGALOW is set on just over 2.5 ACRES, with scenic CROSS CREEK running along the edge of the property. It offers a peaceful rural lifestyle, just a few minutes north of Janetville, and 20 minutes to both Port Perry and the 115. Well-maintained, featuring 3+1 bedrooms and 2 bathrooms, including a PRIMRY ENSUITE. The functional layout (including a main floor wood burning fireplace) is ideal for families or those seeking additional space. The partially finished basement includes a WALKOUT to the backyard, a fourth bedroom and garage access, offering potential for extended living or recreational use. The property features a large driveway for all the toys, an above-ground POOL, attached garage, and additional outbuildings for storage or hobby use. With PUBLIC ACCESS to Scuggog Lake just down the road, this property is well suited for nature lovers and outdoor enthusiasts. Updates include a roof (2022). This is a GREAT opportunity to enjoy space, outdoor hobbies, privacy, room to grow, and convenience within commuting distance to the GTA. (id:61423)
Property Details
|
MLS® Number
|
X12919740 |
|
Property Type
|
Single Family |
|
Community Name
|
Manvers |
|
Amenities Near By
|
Golf Nearby |
|
Easement
|
None |
|
Equipment Type
|
Water Heater, Water Softener |
|
Features
|
Irregular Lot Size, Conservation/green Belt, Wetlands, Sump Pump |
|
Parking Space Total
|
8 |
|
Pool Type
|
Above Ground Pool |
|
Rental Equipment Type
|
Water Heater, Water Softener |
|
Structure
|
Deck, Shed, Outbuilding |
|
View Type
|
Direct Water View |
|
Water Front Type
|
Waterfront On Creek |
Building
|
Bathroom Total
|
2 |
|
Bedrooms Above Ground
|
3 |
|
Bedrooms Below Ground
|
1 |
|
Bedrooms Total
|
4 |
|
Age
|
31 To 50 Years |
|
Amenities
|
Fireplace(s) |
|
Appliances
|
Garage Door Opener Remote(s), Central Vacuum, Water Heater, Blinds, Dishwasher, Dryer, Stove, Washer, Refrigerator |
|
Basement Development
|
Partially Finished |
|
Basement Type
|
N/a (partially Finished) |
|
Construction Style Attachment
|
Detached |
|
Construction Style Split Level
|
Backsplit |
|
Cooling Type
|
Central Air Conditioning |
|
Exterior Finish
|
Brick, Vinyl Siding |
|
Fireplace Present
|
Yes |
|
Fireplace Total
|
1 |
|
Foundation Type
|
Block |
|
Heating Fuel
|
Propane |
|
Heating Type
|
Forced Air |
|
Size Interior
|
1100 - 1500 Sqft |
|
Type
|
House |
|
Utility Water
|
Drilled Well |
Parking
Land
|
Access Type
|
Public Road |
|
Acreage
|
Yes |
|
Land Amenities
|
Golf Nearby |
|
Sewer
|
Septic System |
|
Size Depth
|
325 Ft ,7 In |
|
Size Frontage
|
486 Ft ,2 In |
|
Size Irregular
|
486.2 X 325.6 Ft ; 325.58 Ft X 486.19 Ft |
|
Size Total Text
|
486.2 X 325.6 Ft ; 325.58 Ft X 486.19 Ft|2 - 4.99 Acres |
|
Surface Water
|
River/stream |
|
Zoning Description
|
Rr1 - S8 |
Rooms
| Level |
Type |
Length |
Width |
Dimensions |
|
Basement |
Other |
14.73 m |
8.13 m |
14.73 m x 8.13 m |
|
Basement |
Bedroom |
6.91 m |
3.63 m |
6.91 m x 3.63 m |
|
Main Level |
Primary Bedroom |
3.51 m |
3.99 m |
3.51 m x 3.99 m |
|
Main Level |
Bedroom 2 |
3.23 m |
4.04 m |
3.23 m x 4.04 m |
|
Main Level |
Bedroom 3 |
2.9 m |
3.38 m |
2.9 m x 3.38 m |
|
Main Level |
Kitchen |
3.58 m |
4.06 m |
3.58 m x 4.06 m |
|
Main Level |
Dining Room |
3.71 m |
4.06 m |
3.71 m x 4.06 m |
|
Main Level |
Living Room |
5.79 m |
3.96 m |
5.79 m x 3.96 m |
|
Main Level |
Foyer |
2.64 m |
3.53 m |
2.64 m x 3.53 m |
|
Main Level |
Bathroom |
1.5 m |
2.87 m |
1.5 m x 2.87 m |
|
Main Level |
Bathroom |
2.13 m |
2.87 m |
2.13 m x 2.87 m |
|
Main Level |
Other |
7.77 m |
7.72 m |
7.77 m x 7.72 m |
Utilities
https://www.realtor.ca/real-estate/29514441/128-river-road-kawartha-lakes-manvers-manvers