Contact Us: 705-927-2774 | Email


LOADING

1411 Portage Road Kawartha Lakes (Carden), Ontario K0M 2B0

1 ac
None Acreage

$249,000

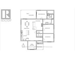
Indirect Waterfront Large Lot ! "New Large Entrance & Parking Area Completed!" In Peaceful Kirkfield, On Hwy 48 A Big Corner "Residential Zoning Lot 1.40 Acres". Sellers Are Builders And Can Build The Example Drawing Or Another Custom Design Up On Request. 1 Hr 45 Min's From D. Town Toronto, Right South Of St. Mitchell, East Of Canal, Minutes To Balsam Lake & Historical Kirkfield Lift-Lock With Picnic Area Boating/Hiking All Kind In Nature & Water Entertainment's. The Trailer In The Images Is Included In The Sale Price. (id:61423)

Business

Business Type Residential
Business Sub Type Residential

Property Details

MLS® Number X12985228
Property Type Vacant Land
Community Name Carden

Building

Cooling Type None
Size Interior 1 Ac

Land

Acreage Yes
Size Depth 444 Ft ,8 In
Size Frontage 140 Ft ,6 In
Size Irregular 1.4
Size Total 1.4 Ac
Size Total Text 1.4 Ac
Zoning Description Rr3

https://www.realtor.ca/real-estate/29589544/1411-portage-road-kawartha-lakes-carden-carden

Interested?

Contact us for more information


Generating Captcha

Your Favourites

 

No Favourites Found