Contact Us: 705-927-2774 | Email


LOADING

183 Hastings Street N Bancroft (Bancroft Ward), Ontario K0L 1C0

3 Bathroom
Partially Air Conditioned Forced Air

$369,000

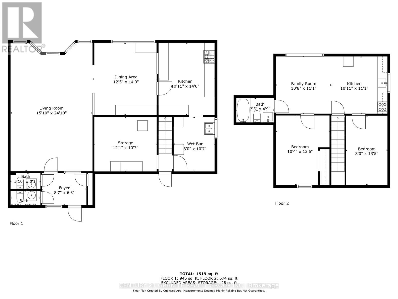
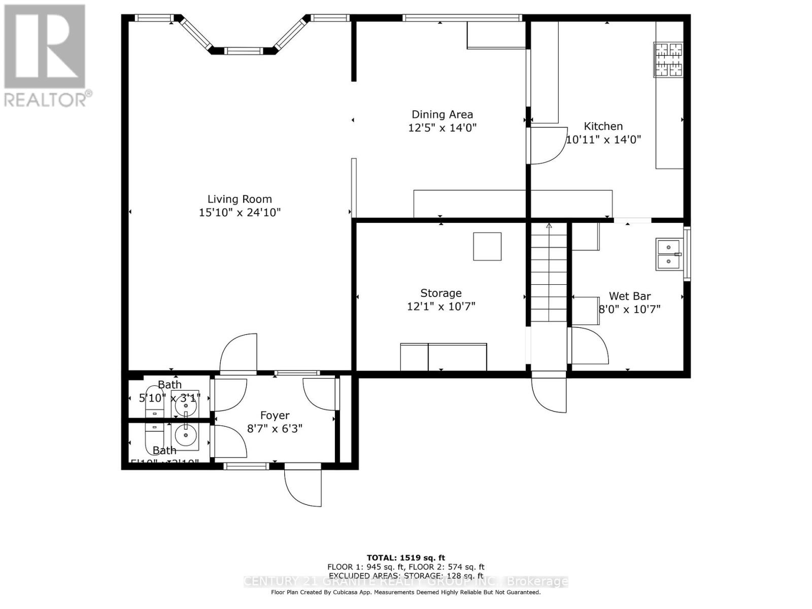
Ready to bring your business dreams to life? This turn-key restaurant comes with a bright and spacious 2-bedroom apartment (574 sq ft) above-perfect for living where you work. The main floor offers a fully equipped restaurant setup with Main Street commercial zoning, giving you the freedom to run a cafe, retail shop, takeover the very successful established restaurant or any venture you've been dreaming of. Enjoy the convenience of municipal water and the affordability of a private septic, plus a private parking lot for 8+ vehicles-a rare find in town! The restaurant is equipped with owned commercial appliances, male and female washrooms, foyer, 15x24 ft dining area with an additional 12.5x14ft flex space to accommodate more diners. Located just steps from downtown Bancroft, you'll benefit from high visibility and steady local traffic, surrounded by other established businesses in one of Ontario's fastest-growing small towns. Whether you're an entrepreneur ready to serve the community or an investor looking for a smart mixed-use opportunity. Live upstairs. Work downstairs. Grow your future-all right here in Bancroft. The restaurant is sold fully equipped. (id:61423)

Business

Business Type Restaurant
Business Sub Type Restaurant/pub

Property Details

MLS® Number X12471926
Property Type Business
Community Name Bancroft Ward
Equipment Type Propane Tank
Parking Space Total 8
Rental Equipment Type Propane Tank

Building

Bathroom Total 3
Appliances All, Freezer
Cooling Type Partially Air Conditioned
Heating Fuel Oil
Heating Type Forced Air
Utility Water Municipal Water

Land

Acreage No
Size Depth 69 Ft
Size Frontage 97 Ft
Size Irregular 0.13
Size Total 0.13 Ac
Size Total Text 0.13 Ac
Zoning Description Commercial Main St.

https://www.realtor.ca/real-estate/29009909/183-hastings-street-n-bancroft-bancroft-ward-bancroft-ward

Interested?

Contact us for more information


Generating Captcha

Your Favourites

 

No Favourites Found