7 Bedroom
3 Bathroom
2000 - 2500 sqft
Fireplace
Central Air Conditioning
Forced Air
Acreage
$828,000
Tucked away on a quiet municipal road just 15 minutes from Bobcaygeon and Buckhorn, this remarkable 15 acre property offers privacy, nature, and a truly one-of-a-kind lifestyle. Featuring forest, winding trails, and tranquil ponds, this is a setting where everyday life slows down and feels connected to the land. At the heart of the property is an original 1836 log cabin, thoughtfully preserved and tastefully updated to balance character with comfort. Enter the bright front porch with ample space, while inside the renovated kitchen showcases a granite waterfall island, ample cabinetry, and an eat-in dining area with walkout to the rear deck overlooking the pond. The main floor also includes a flexible office or bedroom, 4pc bathroom, laundry, and utility space. Upstairs offers 3 additional bedrooms and a 4-piece bath, while the private primary suite enjoys peaceful views across the property. The living room is warm and welcoming, ideal for gatherings. Step outside to experience the true magic of this property. A large deck and screened-in room create effortless indoor-outdoor living, perfect for entertaining or unwinding while surrounded by nature. Multiple fire pit areas invite evenings under the stars. A detached single-car garage with woodstove & storage. Beyond the main home, the property includes several unique retreat spaces: a two-storey log cabin designed for reflection or guests, a second two-storey cabin with living/dining space, bedroom, composting toilet, and outdoor shower, plus a 17' yurt (2022) ideal for meditation, gatherings, or creative use. Serviced with a drilled well, septic system, propane furnace, and water treatment, this property offers rural serenity without sacrificing comfort. Access the Trent Severn Waterway just down the street with the public boat launch, community centre & local marina. (id:61423)
Property Details
|
MLS® Number
|
X12749628 |
|
Property Type
|
Single Family |
|
Community Name
|
Trent Lakes |
|
Amenities Near By
|
Marina |
|
Community Features
|
Community Centre, School Bus |
|
Equipment Type
|
Propane Tank |
|
Features
|
Wooded Area, Irregular Lot Size, Lighting, Guest Suite, Sump Pump |
|
Parking Space Total
|
11 |
|
Rental Equipment Type
|
Propane Tank |
|
Structure
|
Deck, Porch, Outbuilding |
Building
|
Bathroom Total
|
3 |
|
Bedrooms Above Ground
|
4 |
|
Bedrooms Below Ground
|
3 |
|
Bedrooms Total
|
7 |
|
Age
|
16 To 30 Years |
|
Appliances
|
Water Heater, Water Treatment |
|
Basement Development
|
Unfinished |
|
Basement Type
|
Crawl Space (unfinished) |
|
Construction Style Attachment
|
Detached |
|
Cooling Type
|
Central Air Conditioning |
|
Exterior Finish
|
Log, Wood |
|
Fire Protection
|
Alarm System, Smoke Detectors |
|
Fireplace Present
|
Yes |
|
Fireplace Total
|
1 |
|
Fireplace Type
|
Woodstove |
|
Foundation Type
|
Block |
|
Half Bath Total
|
1 |
|
Heating Fuel
|
Propane |
|
Heating Type
|
Forced Air |
|
Stories Total
|
2 |
|
Size Interior
|
2000 - 2500 Sqft |
|
Type
|
House |
|
Utility Water
|
Drilled Well |
Parking
Land
|
Access Type
|
Year-round Access, Marina Docking |
|
Acreage
|
Yes |
|
Land Amenities
|
Marina |
|
Sewer
|
Septic System |
|
Size Depth
|
1361 Ft |
|
Size Frontage
|
992 Ft |
|
Size Irregular
|
992 X 1361 Ft |
|
Size Total Text
|
992 X 1361 Ft|10 - 24.99 Acres |
|
Surface Water
|
Lake/pond |
|
Zoning Description
|
Ru |
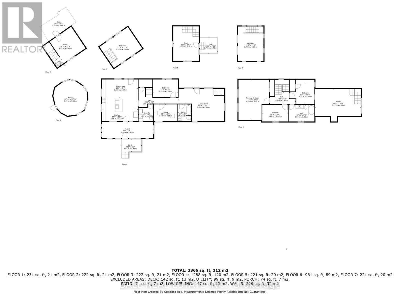
Rooms
| Level |
Type |
Length |
Width |
Dimensions |
|
Second Level |
Bedroom 4 |
6.97 m |
4.88 m |
6.97 m x 4.88 m |
|
Second Level |
Bathroom |
3.94 m |
2.55 m |
3.94 m x 2.55 m |
|
Second Level |
Bedroom |
5.28 m |
3.88 m |
5.28 m x 3.88 m |
|
Second Level |
Bedroom |
3.9 m |
5.26 m |
3.9 m x 5.26 m |
|
Second Level |
Primary Bedroom |
4.76 m |
6.15 m |
4.76 m x 6.15 m |
|
Second Level |
Bedroom 2 |
3.9 m |
2.55 m |
3.9 m x 2.55 m |
|
Second Level |
Bedroom 3 |
3.77 m |
3.23 m |
3.77 m x 3.23 m |
|
Ground Level |
Sunroom |
3.03 m |
1.92 m |
3.03 m x 1.92 m |
|
Ground Level |
Kitchen |
5.48 m |
3.58 m |
5.48 m x 3.58 m |
|
Ground Level |
Dining Room |
5.48 m |
2.77 m |
5.48 m x 2.77 m |
|
Ground Level |
Bedroom 5 |
3.78 m |
2.72 m |
3.78 m x 2.72 m |
|
Ground Level |
Living Room |
6.96 m |
4.96 m |
6.96 m x 4.96 m |
|
Ground Level |
Bathroom |
1.98 m |
2.55 m |
1.98 m x 2.55 m |
|
Ground Level |
Laundry Room |
2.25 m |
2.58 m |
2.25 m x 2.58 m |
Utilities
|
Electricity
|
Installed |
|
Wireless
|
Available |
|
Electricity Connected
|
Connected |
https://www.realtor.ca/real-estate/29313622/221-edwina-drive-trent-lakes-trent-lakes