Contact Us: 705-927-2774 | Email


LOADING

2311 Elm Tree Road Kawartha Lakes (Fenelon), Ontario K0M 1E0

4458 sqft
Fully Air Conditioned

$449,750

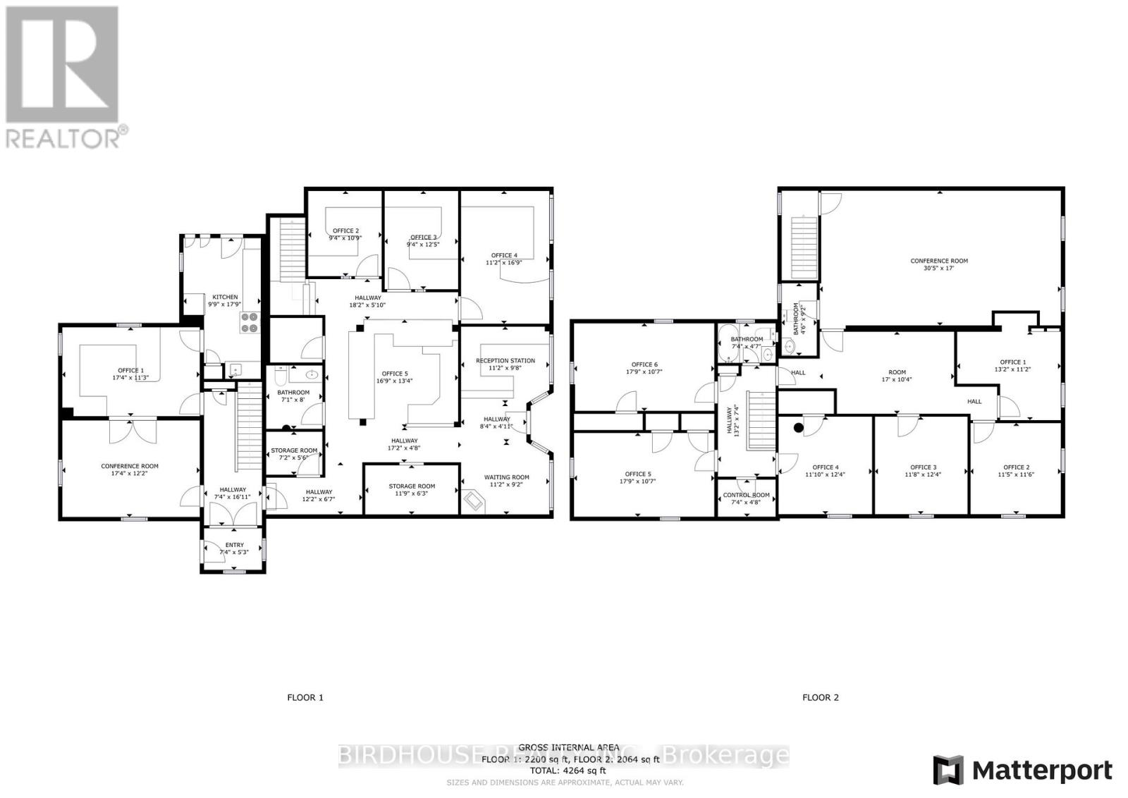
A well-maintained & updated 4458 square foot two-story brick building in Cambray. Located in Cambray at the busy junction of Elm Tree Rd & Highway 9, just minutes outside Lindsay & under an hour to Peterborough & Port Perry. Large spacious corner lot (0.41 acres) with room for additional buildings & parking. Currently used as a large office building. Commercial & residential uses permitted. Rear part of the building is already setup for a 3 bedroom 1 bathroom with kitchen living quarters for a business owner. The building could also be split into two separate office spaces with separate entrances, hydro & HVAC systems. Bonus detached 20'x 28' double garage with concrete floor. Commercial (C1) zoning allows for residential use of part of the building along with numerous alternative uses including but not limited to retail sales, health centre, commercial school, business or professional offices, restaurant, upholstering & furniture repair. Numerous updates in the last 10 years, including windows (2017), HVAC (2018), attic insulation (2021) & office renovation (2016). So much potential! (id:61423)

Business

Business Type Other
Business Sub Type Professional office(s)

Property Details

MLS® Number X12947096
Property Type Office
Community Name Fenelon
Equipment Type Propane Tank
Rental Equipment Type Propane Tank

Building

Age 100+ Years
Cooling Type Fully Air Conditioned
Size Interior 4458 Sqft
Type Offices
Utility Water Cistern

Land

Acreage No
Sewer Septic System
Size Depth 196 Ft ,2 In
Size Frontage 84 Ft
Size Irregular 84 X 196.23 Ft
Size Total Text 84 X 196.23 Ft
Zoning Description C1

https://www.realtor.ca/real-estate/29545969/2311-elm-tree-road-kawartha-lakes-fenelon-fenelon

Interested?

Contact us for more information


Generating Captcha

Your Favourites

 

No Favourites Found