4 Bedroom
4 Bathroom
1500 - 2000 sqft
Central Air Conditioning
Forced Air
Landscaped
$639,900
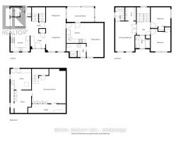
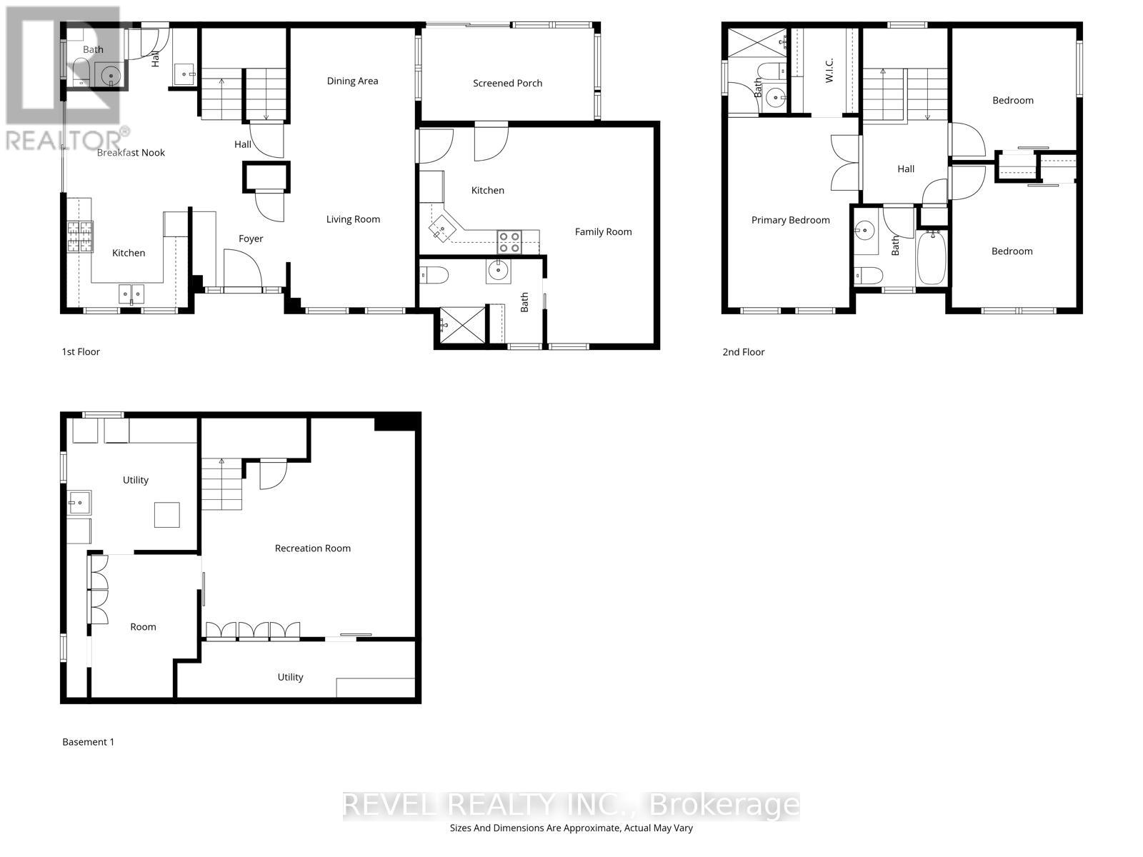
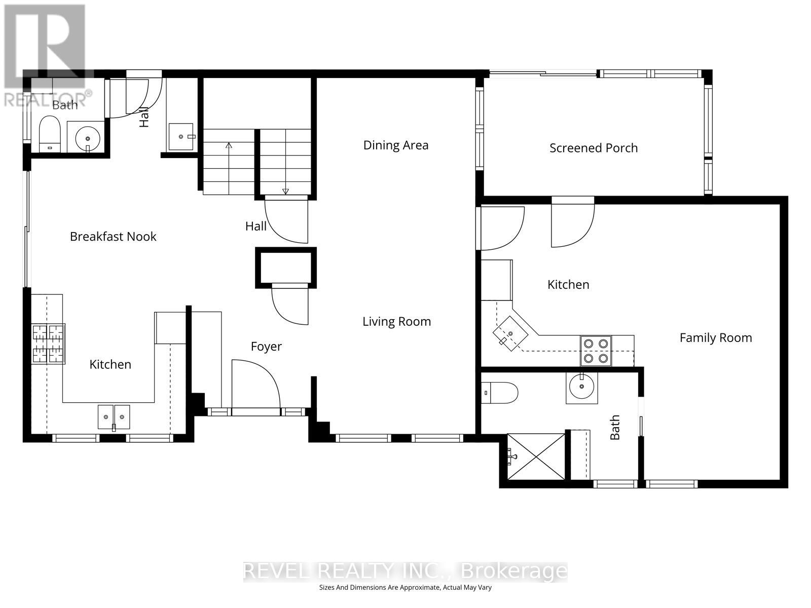
Nicely Updated Northward 3 Bedroom, 2 Storey Family Home With MAIN FLOOR Professionally Finished STUDIO / IN-LAW APARTMENT on a spacious corner lot centrally located in Lindsay, close to schools, parks & amenities! Numerous Updates include Gorgeous Hardwood Floors and Hardwood Stairs, A 3-Season Sunroom with Entrance into the Apartment. Lots of Versatility in this spacious home to suit all your Family's Needs; Use this finished Main Floor Space as either an awesome Sunken Family Room or Main Floor Primary Bedroom Suite or Guest Bedroom! This Home Features Newer Windows, Roof'23, Soffits, Eaves & Upgraded Plank Vinyl Siding'24, Furnace'19, Self-Contained Apartment that was finished (with permits) in the Double Car Garage & includes a Kitchen, Family Room/ Bedroom Area, 3pc Bathroom With Walk-in Shower, Storage Area & Separate Entrance. (See Att'd Floor Plans). This Bright & Sunny Home is great for entertaining with the combined Living & Dining Room, the Spacious Kitchen with movable Island. Bonus Pantry/Coffee Bar that is conveniently located in the hallway that leads to the 2pc Bath & Rear Door to the backyard. This well-appointed Kitchen also has a Sliding Patio Door to the Sideyard Deck with Gazebo allowing for comfortable Alfresco Dining in the warmer weather. Or enjoy the Sunshine in the Cozy 3 Season Enclosed Porch. The 2nd Floor is graced with 3 spacious Bedrooms, upgraded Barn Closet Doors, Newer Berber Carpet throughout & Updated 4pc Bath. The Primary Bedroom has a 3pc Ensuite Bath & Huge Walk-in Closet. There is also Additional Family Space in the Finished Basement allowing for a comfy Rec Room for family games & movie night, with built-in closets & lots of storage space, PLUS a separate office space or craft/playroom with large closets. Finally the Utility Room with Laundry, more cabinets, Laundry Sink & Sump Pump .Lots of Parking to accommodate Tenants. This property allows for several private outdoor patio areas. Great Family Home in a Great Community! (id:61423)
Open House
This property has open houses!
Starts at:
10:00 am
Ends at:
12:00 pm
Property Details
|
MLS® Number
|
X12829796 |
|
Property Type
|
Single Family |
|
Community Name
|
Lindsay |
|
Amenities Near By
|
Public Transit, Place Of Worship, Park, Schools |
|
Community Features
|
Community Centre |
|
Equipment Type
|
Water Heater - Gas, Water Heater |
|
Features
|
Flat Site, Gazebo, Sump Pump, In-law Suite |
|
Parking Space Total
|
3 |
|
Rental Equipment Type
|
Water Heater - Gas, Water Heater |
|
Structure
|
Porch, Shed |
Building
|
Bathroom Total
|
4 |
|
Bedrooms Above Ground
|
4 |
|
Bedrooms Total
|
4 |
|
Age
|
31 To 50 Years |
|
Amenities
|
Canopy |
|
Appliances
|
Water Heater, Water Meter, Dishwasher, Dryer, Hood Fan, Gas Stove(s), Washer, Window Coverings, Two Refrigerators |
|
Basement Development
|
Finished |
|
Basement Type
|
Full (finished) |
|
Construction Style Attachment
|
Detached |
|
Cooling Type
|
Central Air Conditioning |
|
Exterior Finish
|
Brick Facing, Vinyl Siding |
|
Flooring Type
|
Hardwood, Carpeted, Vinyl, Laminate, Concrete |
|
Foundation Type
|
Poured Concrete |
|
Half Bath Total
|
1 |
|
Heating Fuel
|
Natural Gas |
|
Heating Type
|
Forced Air |
|
Stories Total
|
2 |
|
Size Interior
|
1500 - 2000 Sqft |
|
Type
|
House |
|
Utility Water
|
Municipal Water |
Parking
Land
|
Acreage
|
No |
|
Fence Type
|
Partially Fenced |
|
Land Amenities
|
Public Transit, Place Of Worship, Park, Schools |
|
Landscape Features
|
Landscaped |
|
Sewer
|
Sanitary Sewer |
|
Size Depth
|
101 Ft ,9 In |
|
Size Frontage
|
54 Ft ,1 In |
|
Size Irregular
|
54.1 X 101.8 Ft |
|
Size Total Text
|
54.1 X 101.8 Ft |
Rooms
| Level |
Type |
Length |
Width |
Dimensions |
|
Second Level |
Bedroom 2 |
3.15 m |
3.01 m |
3.15 m x 3.01 m |
|
Second Level |
Bedroom 3 |
3.76 m |
3.01 m |
3.76 m x 3.01 m |
|
Second Level |
Bathroom |
2.01 m |
2.39 m |
2.01 m x 2.39 m |
|
Second Level |
Primary Bedroom |
4.81 m |
3.38 m |
4.81 m x 3.38 m |
|
Basement |
Recreational, Games Room |
5.08 m |
2.49 m |
5.08 m x 2.49 m |
|
Basement |
Office |
3.25 m |
2.62 m |
3.25 m x 2.62 m |
|
Basement |
Utility Room |
3.25 m |
2.62 m |
3.25 m x 2.62 m |
|
Main Level |
Living Room |
4.63 m |
3.02 m |
4.63 m x 3.02 m |
|
Main Level |
Dining Room |
2.14 m |
3.02 m |
2.14 m x 3.02 m |
|
Main Level |
Kitchen |
2.94 m |
2.44 m |
2.94 m x 2.44 m |
|
Main Level |
Eating Area |
2.79 m |
3.17 m |
2.79 m x 3.17 m |
|
Main Level |
Pantry |
1.67 m |
1.53 m |
1.67 m x 1.53 m |
|
Main Level |
Bathroom |
1.4 m |
1.48 m |
1.4 m x 1.48 m |
|
Main Level |
Family Room |
6.09 m |
7.32 m |
6.09 m x 7.32 m |
|
Main Level |
Kitchen |
2.9 m |
3.09 m |
2.9 m x 3.09 m |
|
Main Level |
Foyer |
2.01 m |
2.01 m |
2.01 m x 2.01 m |
Utilities
|
Cable
|
Available |
|
Electricity
|
Installed |
|
Sewer
|
Installed |
https://www.realtor.ca/real-estate/29410517/284-victoria-avenue-n-kawartha-lakes-lindsay-lindsay