Contact Us: 705-927-2774 | Email


LOADING

312 - 8 Huron Street Kawartha Lakes (Lindsay), Ontario K9V 6K3

1 Bedroom 1 Bathroom 800 - 899 sqft
Central Air Conditioning Forced Air

$249,900

Maintenance, Insurance, Water, Parking

$327.56 Monthly

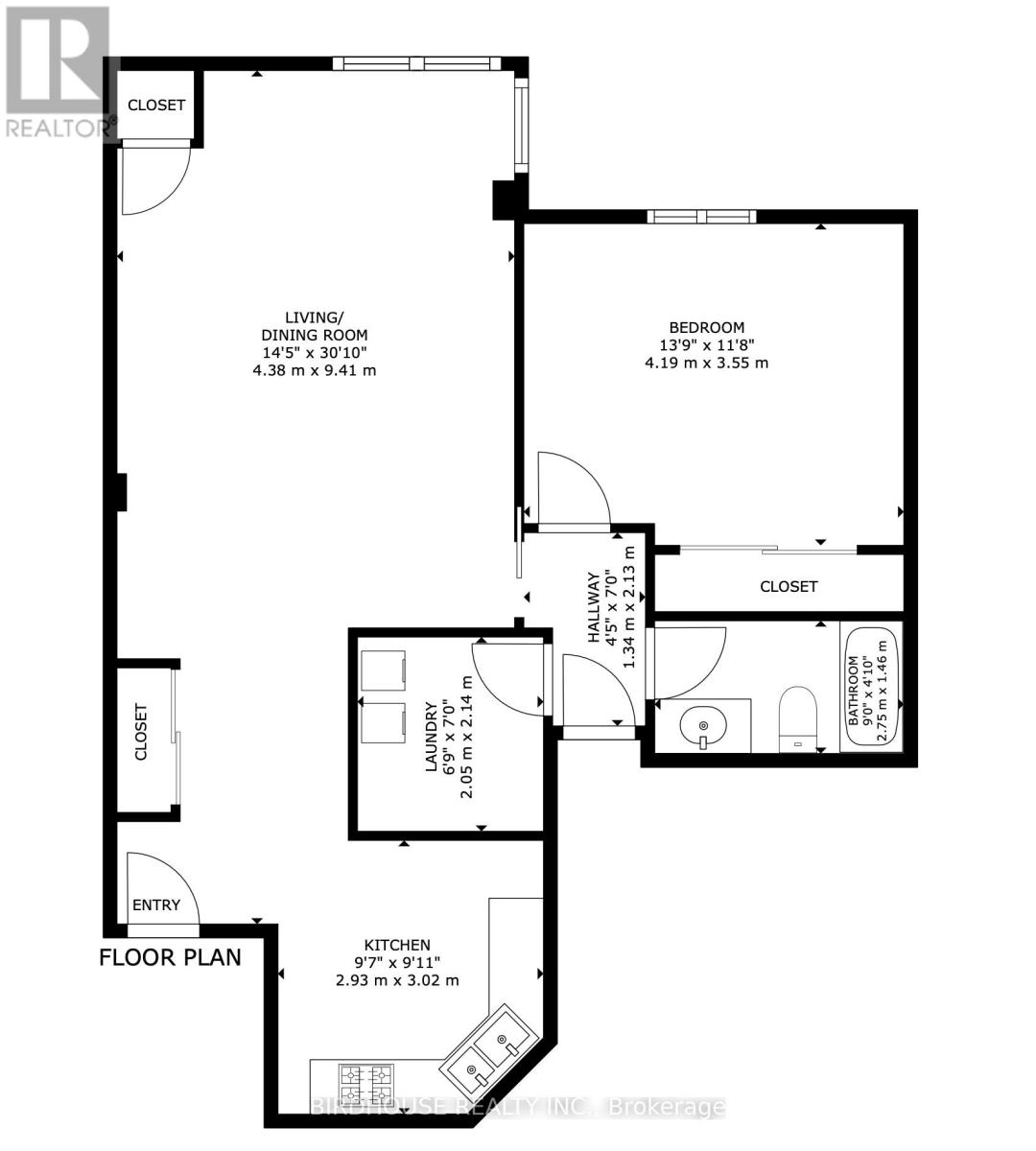
Welcome to Guy Mills Court - a well-maintained life lease community exclusively for seniors. This bright and inviting 800 sq. ft. unit offers an abundance of natural light and thoughtful updates, including five newer windows (approximately 18 months old) and a furnace replaced in 2022. The layout features one bedroom, one bathroom, and convenient ensuite laundry. Residents enjoy an exceptional range of amenities, including underground parking (one exclusive space), a meeting room with kitchen, guest suites, chapel, library, games room - designed to support a comfortable and engaging lifestyle. Monthly fee breakdown: Reserve Fund: $132.96/Month, Maintenance Fees: $327.56/Month, Taxes: $165.40/Month = $625.92 A Month. (id:61423)

Property Details

MLS® Number X12642460
Property Type Single Family
Community Name Lindsay
Amenities Near By Golf Nearby, Hospital, Park, Place Of Worship, Public Transit
Community Features Pets Allowed With Restrictions
Equipment Type Water Heater
Features Elevator, Wheelchair Access
Parking Space Total 1
Rental Equipment Type Water Heater

Building

Bathroom Total 1
Bedrooms Above Ground 1
Bedrooms Total 1
Amenities Party Room, Visitor Parking
Appliances Dishwasher, Dryer, Freezer, Stove, Washer
Basement Type None
Cooling Type Central Air Conditioning
Exterior Finish Stucco
Heating Fuel Natural Gas
Heating Type Forced Air
Size Interior 800 - 899 Sqft
Type Other

Parking

Underground
Garage

Land

Acreage No
Land Amenities Golf Nearby, Hospital, Park, Place Of Worship, Public Transit

Rooms

Level Type Dimensions
Main Level Kitchen 2.93 m x 3.02 m
Main Level Living Room 4.38 m x 9.41 m
Main Level Laundry Room 2.05 m x 2.14 m
Main Level Bathroom 2.75 m x 1.46 m
Main Level Bedroom 4.19 m x 3.55 m

https://www.realtor.ca/real-estate/29195790/312-8-huron-street-kawartha-lakes-lindsay-lindsay

Interested?

Contact us for more information


Generating Captcha

Your Favourites

 

No Favourites Found