Contact Us: 705-927-2774 | Email


LOADING

40 Dormer Road Kawartha Lakes (Lindsay), Ontario K9V 6H8

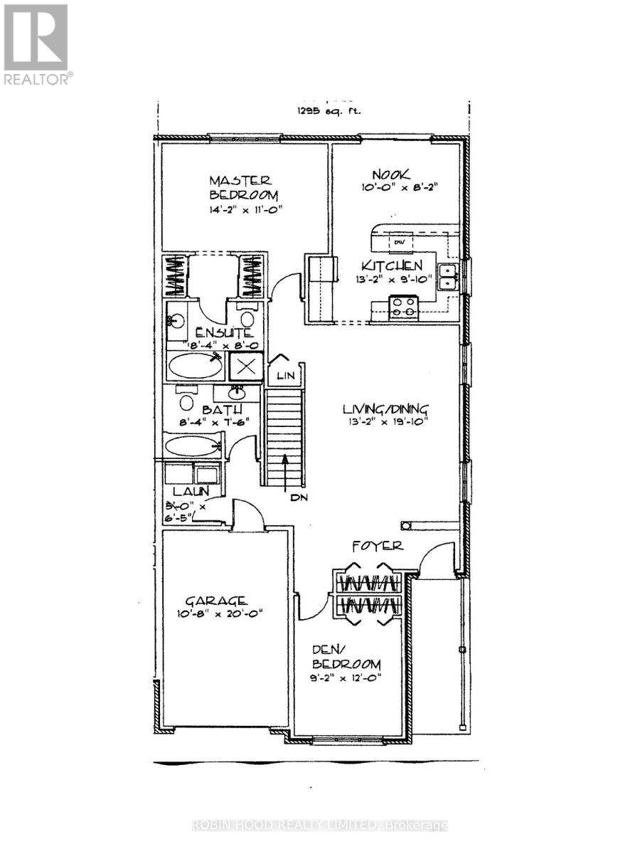
2 Bedroom 2 Bathroom 1100 - 1500 sqft
Raised Bungalow Central Air Conditioning Forced Air

$674,900

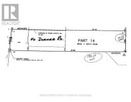
*** Additional Listing Details - Click Brochure Link *** Park-Side Bungalow with Rare 190ft Lot & Development Potential! Whether you are looking for a "forever home" with a mortgage-helper or a private sanctuary for multi-generational living, this property offers rare "triple-unit" potential under Ontario's Bill 23 legislation. The survey confirms a 2.24m to 2.25m side-yard clearance on the park-facing side of the house. This wide, unobstructed path is ideal for creating a private entrance or providing easy machinery access for a detached Garden Suite/Granny Flat. At 190.3 feet deep, the backyard currently features mature trees and plenty of shade, with more than enough room to accommodate a detached cottage while still maintaining a massive private yard. Bordering the park on your side boundary offers increased privacy, open views, and the benefit of having only one immediate residential neighbour. This bright, raised 1295 square foot bungalow with everything available on the main floor also features a spacious, high-ceiling unfinished basement with a 3-piece rough-in, perfectly suited for a legal second suite or a premium guest wing. New Additional Residential Units (ARUs) are currently exempt from municipal development charges, making this a high-value opportunity for a long-term housing solution. Prime location with easy access to local amenities and schools. The asking price reflects premium lot depth, park-side location and verified development access. (id:61423)

Property Details

MLS® Number X12822164
Property Type Single Family
Community Name Lindsay
Equipment Type Water Heater
Features Sump Pump
Parking Space Total 3
Rental Equipment Type Water Heater

Building

Bathroom Total 2
Bedrooms Above Ground 2
Bedrooms Total 2
Appliances Garage Door Opener Remote(s), Water Meter, Barbeque, Blinds, Dishwasher, Dryer, Garage Door Opener, Microwave, Oven, Washer, Refrigerator
Architectural Style Raised Bungalow
Basement Development Unfinished
Basement Type N/a (unfinished)
Construction Style Attachment Semi-detached
Cooling Type Central Air Conditioning
Exterior Finish Brick, Concrete
Foundation Type Concrete
Heating Fuel Natural Gas
Heating Type Forced Air
Stories Total 1
Size Interior 1100 - 1500 Sqft
Type House
Utility Water Municipal Water

Parking

Attached Garage
Garage

Land

Acreage No
Sewer Sanitary Sewer
Size Depth 190 Ft ,3 In
Size Frontage 35 Ft ,7 In
Size Irregular 35.6 X 190.3 Ft
Size Total Text 35.6 X 190.3 Ft

https://www.realtor.ca/real-estate/29401731/40-dormer-road-kawartha-lakes-lindsay-lindsay

Interested?

Contact us for more information


Generating Captcha

Your Favourites

 

No Favourites Found