4 Bedroom
3 Bathroom
2000 - 2500 sqft
Central Air Conditioning, Air Exchanger
Forced Air
$750,000
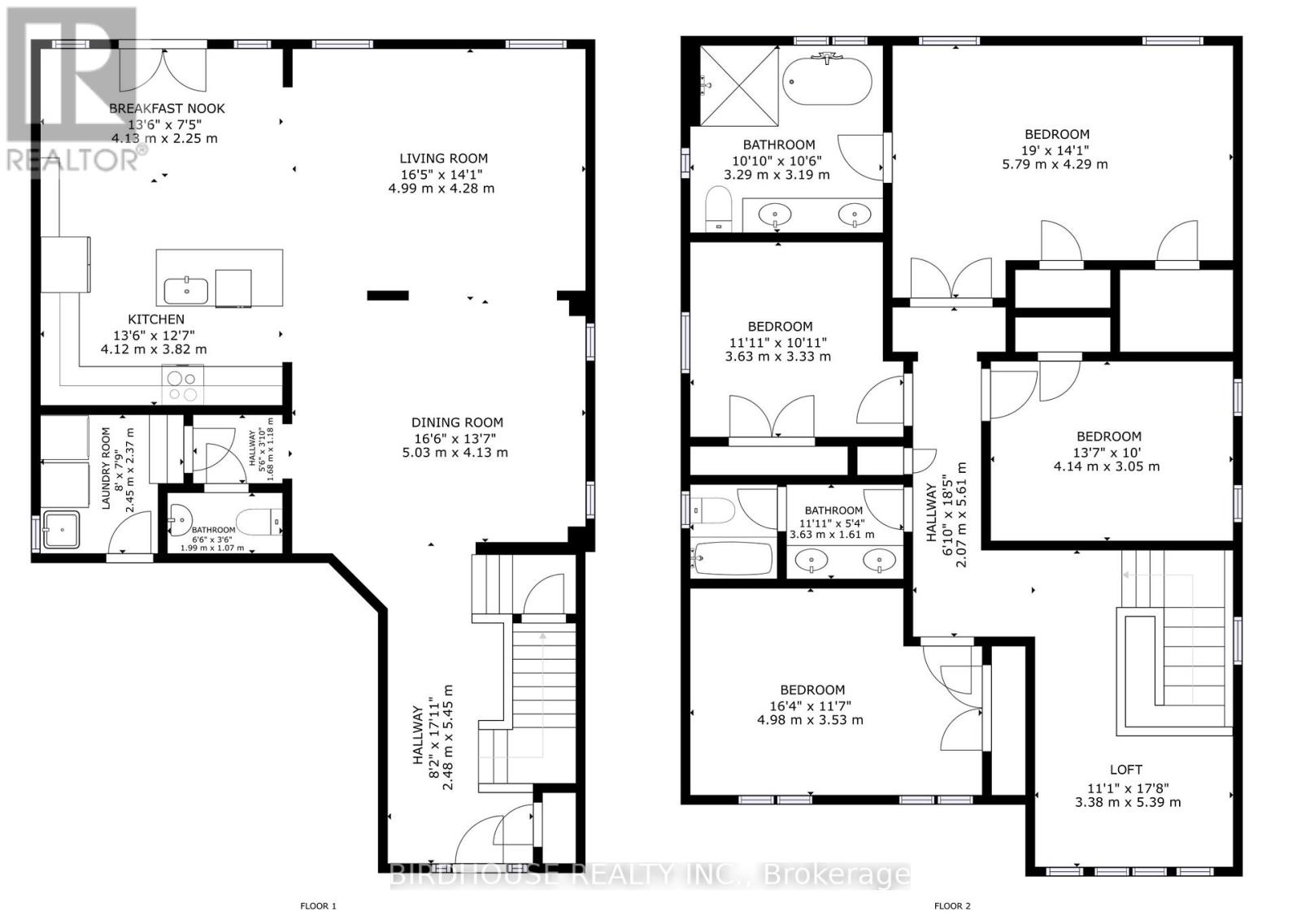
This stunning two-storey corner lot home offers 4 bedrooms and 2.5 bathrooms, thoughtfully designed for modern family living. The main floor boasts a bright, open-concept layout featuring an eat-in kitchen with elegant quartz countertops, a centre island, and seamless flow into the spacious living and dining areas-perfect for both everyday living and entertaining. Enjoy soaring ceilings and a convenient walkout from the kitchen to a fully fenced backyard, complete with a wooden gazebo. Added convenience comes with main floor laundry, a 2-piece powder room, and direct access from the attached two-car garage. Upstairs, a versatile loft space provides the perfect setting for a home office or cozy reading nook. The second level also features 4 generously sized bedrooms, including a beautiful primary suite with a luxurious 5-piece ensuite. An additional full bathroom serves the remaining bedrooms. The unfinished basement offers excellent potential, featuring a rough-in for an additional bathroom-ready for your future customization. Home is also equipped with 200 AMP electrical service. This home is close to all amenities, offering an exceptional blend of comfort, style, and convenience. (id:61423)
Property Details
|
MLS® Number
|
X12897028 |
|
Property Type
|
Single Family |
|
Community Name
|
Lindsay |
|
Amenities Near By
|
Golf Nearby, Hospital |
|
Easement
|
Easement |
|
Equipment Type
|
Water Heater - Gas, Water Heater |
|
Features
|
Level Lot, Level, Gazebo |
|
Parking Space Total
|
4 |
|
Rental Equipment Type
|
Water Heater - Gas, Water Heater |
Building
|
Bathroom Total
|
3 |
|
Bedrooms Above Ground
|
4 |
|
Bedrooms Total
|
4 |
|
Age
|
0 To 5 Years |
|
Appliances
|
Water Meter, Dishwasher, Dryer, Microwave, Stove, Washer, Window Coverings, Refrigerator |
|
Basement Development
|
Unfinished |
|
Basement Type
|
Full (unfinished) |
|
Construction Style Attachment
|
Detached |
|
Cooling Type
|
Central Air Conditioning, Air Exchanger |
|
Exterior Finish
|
Vinyl Siding |
|
Foundation Type
|
Poured Concrete |
|
Half Bath Total
|
1 |
|
Heating Fuel
|
Natural Gas |
|
Heating Type
|
Forced Air |
|
Stories Total
|
2 |
|
Size Interior
|
2000 - 2500 Sqft |
|
Type
|
House |
|
Utility Water
|
Municipal Water |
Parking
Land
|
Acreage
|
No |
|
Fence Type
|
Fully Fenced, Fenced Yard |
|
Land Amenities
|
Golf Nearby, Hospital |
|
Sewer
|
Sanitary Sewer |
|
Size Depth
|
114 Ft ,9 In |
|
Size Frontage
|
44 Ft ,4 In |
|
Size Irregular
|
44.4 X 114.8 Ft |
|
Size Total Text
|
44.4 X 114.8 Ft |
|
Zoning Description
|
R2-s37 |
Rooms
| Level |
Type |
Length |
Width |
Dimensions |
|
Second Level |
Bedroom |
4.14 m |
3.05 m |
4.14 m x 3.05 m |
|
Second Level |
Bedroom |
4.98 m |
3.53 m |
4.98 m x 3.53 m |
|
Second Level |
Bathroom |
3.63 m |
1.61 m |
3.63 m x 1.61 m |
|
Second Level |
Loft |
3.38 m |
5.39 m |
3.38 m x 5.39 m |
|
Second Level |
Primary Bedroom |
5.79 m |
4.29 m |
5.79 m x 4.29 m |
|
Second Level |
Bathroom |
3.29 m |
3.19 m |
3.29 m x 3.19 m |
|
Second Level |
Bedroom |
3.63 m |
3.33 m |
3.63 m x 3.33 m |
|
Main Level |
Foyer |
2.48 m |
5.45 m |
2.48 m x 5.45 m |
|
Main Level |
Dining Room |
5.03 m |
4.13 m |
5.03 m x 4.13 m |
|
Main Level |
Living Room |
4.99 m |
4.28 m |
4.99 m x 4.28 m |
|
Main Level |
Kitchen |
4.12 m |
3.82 m |
4.12 m x 3.82 m |
|
Main Level |
Eating Area |
4.13 m |
2.25 m |
4.13 m x 2.25 m |
|
Main Level |
Bathroom |
1.99 m |
1.07 m |
1.99 m x 1.07 m |
|
Main Level |
Laundry Room |
2.45 m |
2.37 m |
2.45 m x 2.37 m |
Utilities
|
Cable
|
Available |
|
Electricity
|
Installed |
|
Sewer
|
Installed |
https://www.realtor.ca/real-estate/29487313/53-hancock-crescent-kawartha-lakes-lindsay-lindsay