Contact Us: 705-927-2774 | Email


LOADING

65 Bolton Street Kawartha Lakes (Bobcaygeon), Ontario K0M 1A0

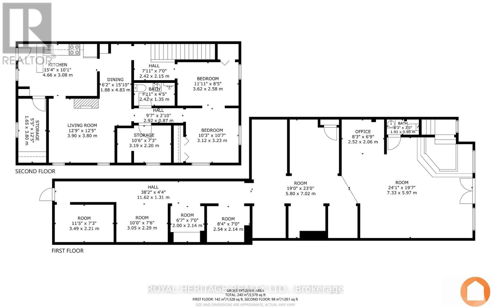
2 Bathroom 2579 sqft
None Forced Air

$1,100,000

Discover a rare opportunity to own a landmark Century Building in the heart of vibrant Bobcaygeon. Ideally positioned at a busy crosswalk directly across from Foodland, this high-visibility property offers exceptional exposure and steady foot traffic year-round-perfect for maximizing business potential. The main level is home to North 65, a well-established and successful retail store with a 26-year track record, providing immediate credibility and a strong foundation for continued success. Above, a spacious three-bedroom apartment with a private entrance offers flexible living arrangements-ideal for owner-occupancy, staff housing, or an additional income stream. Designed for convenience and accessibility, the property features private paved parking for eight vehicles, a detached double garage, and a privately owned laneway with direct access to Bolton Street-making deliveries, customer access, and day-to-day operations seamless. Zoned C1, this versatile property opens the door to a wide range of commercial opportunities, allowing you to bring your vision to life in a thriving, supportive community just 1.5 hours from the GTA. Enjoy the lifestyle benefits of Bobcaygeon, a sought-after destination known for its year-round activities, charming boutique shopping, and beautiful public beaches. Popular local attractions including Lock 32, Beach Park, and Kawartha Dairy are all within walking distance-enhancing both customer appeal and quality of life. Whether you're looking to invest, expand, or start a new chapter, this unique property combines location, functionality, and lifestyle in one exceptional offering. (id:61423)

Business

Name NORTH 65

Property Details

MLS® Number X12472784
Property Type Business
Community Name Bobcaygeon
Farm Type Other
Parking Space Total 10

Building

Bathroom Total 2
Age 100+ Years
Appliances Water Heater
Cooling Type None
Heating Fuel Oil
Heating Type Forced Air
Size Interior 2579 Sqft
Utility Water Municipal Water

Land

Acreage No
Sewer Sanitary Sewer
Size Depth 192 Ft
Size Frontage 32 Ft
Size Irregular 32 X 192 Ft
Size Total Text 32 X 192 Ft
Zoning Description C1

https://www.realtor.ca/real-estate/29012154/65-bolton-street-kawartha-lakes-bobcaygeon-bobcaygeon

Interested?

Contact us for more information


Generating Captcha

Your Favourites

 

No Favourites Found