Contact Us: 705-927-2774 | Email


LOADING

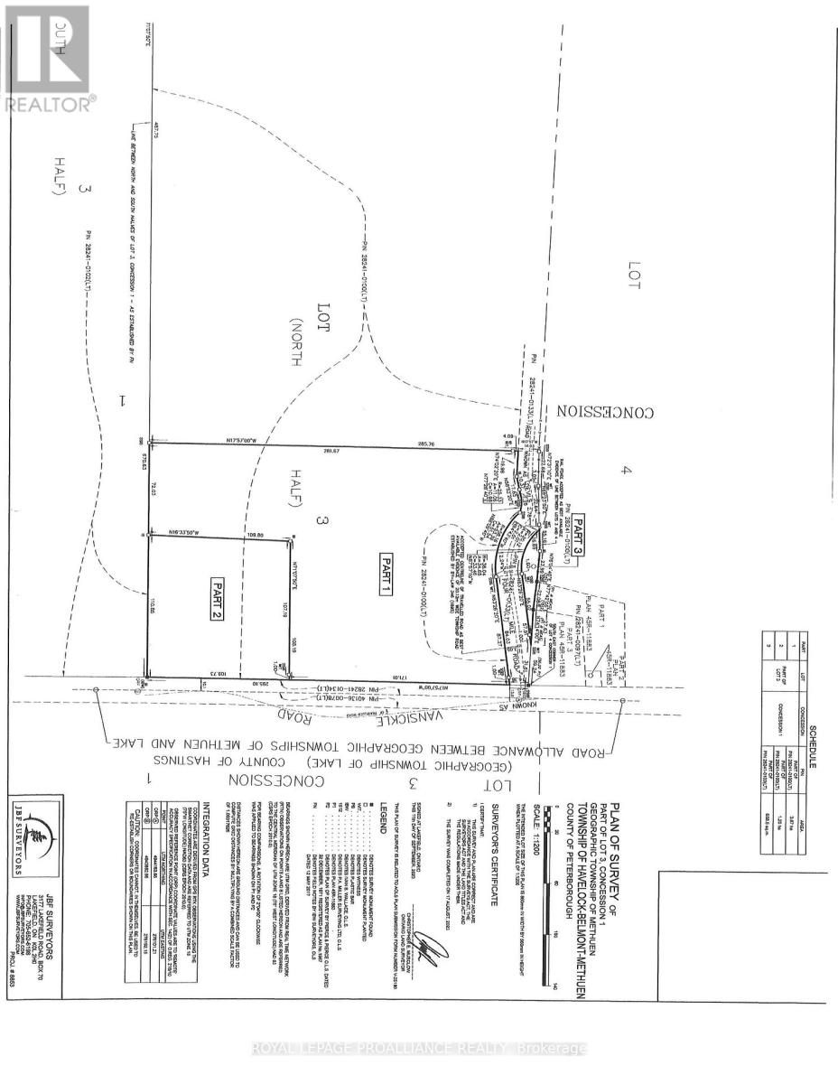
Lot 2 Vansickle Road N Havelock-Belmont-Methuen (Belmont-Methuen), Ontario K0L 1C0

Acreage

$139,900

Discover an exceptional opportunity near Cordova Lake with this beautifully treed, nearly 3-acre building lot. Ideally positioned on a year-round, municipally maintained road with school bus service, the property offers convenient access to nearby town amenities while maintaining a peaceful, natural setting. The groundwork for your project is already in place: a cleared building site and established gravel driveway provide a strong head start for your future build. Whether you envision a full-time residence, a country retreat, or a recreational getaway, this property delivers the flexibility to bring your plans to life. Enjoy the tranquility of nature at your doorstep, with pristine Cordova Lake only minutes away for swimming, boating, and fishing. HST is applicable to the purchase price, and Vendor Take-Back (VTB) financing may be available to qualified buyers. A rare chance to secure a ready-to-build lot in a desirable rural location - the perfect canvas for your next chapter. (id:61423)

Property Details

MLS® Number X12460805
Property Type Vacant Land
Community Name Belmont-Methuen
Community Features School Bus
Easement Unknown
Equipment Type None
Features Wooded Area, Rolling
Parking Space Total 6
Rental Equipment Type None

Building

Land

Access Type Public Road, Year-round Access
Acreage Yes
Size Depth 346 Ft
Size Frontage 360 Ft
Size Irregular 360 X 346 Ft
Size Total Text 360 X 346 Ft|2 - 4.99 Acres
Surface Water Lake/pond
Zoning Description Rr

Utilities

Electricity Available
Electricity Available Nearby
Telephone Nearby

https://www.realtor.ca/real-estate/28986102/lot-2-vansickle-road-n-havelock-belmont-methuen-belmont-methuen-belmont-methuen

Interested?

Contact us for more information


Generating Captcha

Your Favourites

 

No Favourites Found